Leistungen: Planung, Ausschreibung, Örtliche Bauaufsicht
Status: in Bearbeitung
Leistungen: Planung, Ausschreibung, Örtliche Bauaufsicht
Fertigstellung: 2025
Leistungen: Projektsteuerung, Entwurf- & Einreichplanung
Status: Fertiggestellt
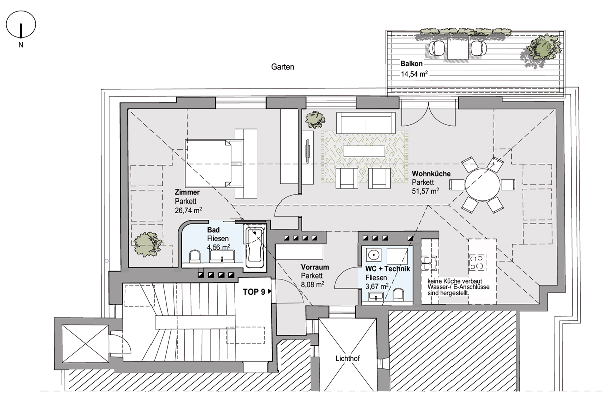
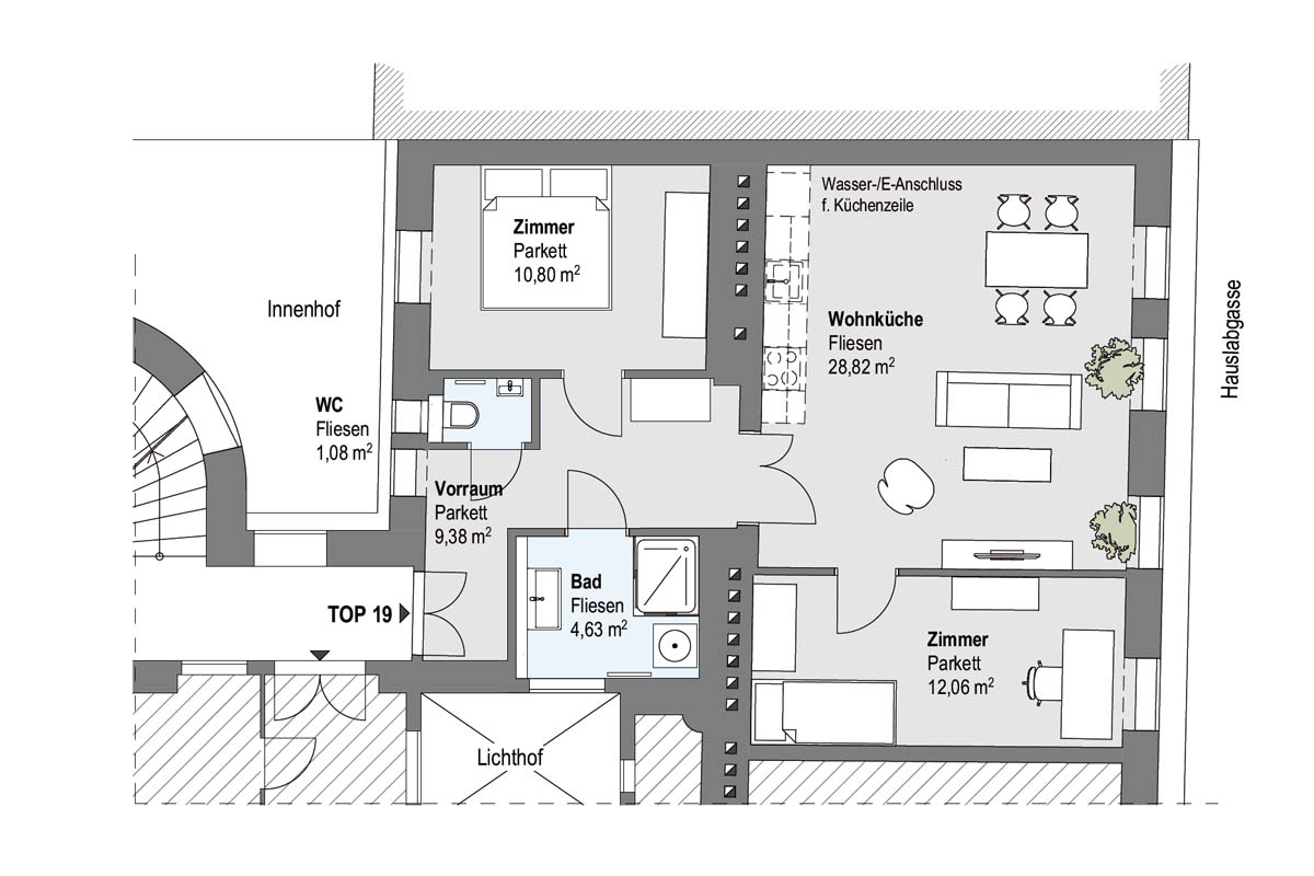
1120, Niederhofstraße 18: Komplettsanierung & DG-Zubau – Hotel am Meidlinger Markt
1040, Belvederegasse 23: DG-Zubau
1090, Liechtensteinstrasse 52: DG-Zubau
1140, Felbigergasse 93: DG-Zubau
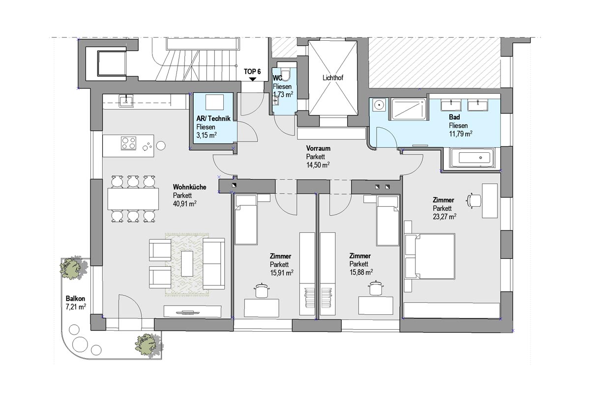
Schaubilder: ZoomVP
Leistungen: Einreich- & Ausführungsplanung
Baubeginn/Fertigstellung: 2024
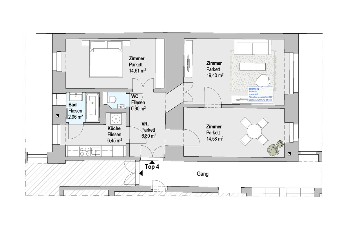
Schaubilder: ZoomVP
Leistungen: Projektsteuerung, Entwurf- & Einreichplanung
Status: Einreichung bewilligt
Leistungen: Planung, Ausschreibung, Örtliche Bauaufsicht.
Siehe auch unsere Kooperationswebseite www.wieneraltbauwohnung.at
Fotos: Roland Krauss
Leistungen: alle Planungsphasen, Ausschreibung, Örtliche Bauaufsicht
Baubeginn/Fertigstellung: 2022-2023
Fotos: Roland Krauss
Leistungen: alle Planungsphasen
Baubeginn/Fertigstellung: 2019-2021
Fotos: Roland Krauss
Leistungen: alle Planungsphasen, Ausschreibung, Örtliche Bauaufsicht
Fertigstellung: 2018-20
Leistungen: Planung, Ausschreibung, Örtliche Bauaufsicht
Fertigstellung: 2018
Leistungen: Planung, Ausschreibung, Örtliche Bauaufsicht.
Fertigstellung: 2018
Ein ehemaliger Verkaufsraum eines Autohauses wurde in ein Kundencenter für die Wiener Privatbank SE umgebaut.
Die Herausforderung bestand darin, in einem sehr knapp kalkulierten Zeitraum, ein gestalterisch und technisch sehr anspruchsvolles Projekt umzusetzen.
Leistungen: Planung, Ausschreibung, Örtliche Bauaufsicht.
Fertigstellung: 2016
Aufgrund des Bedarfs an zusätzlichem Wohnraum wurde ein 8x4x4m großer Holzkubus an das Bestandsgebäude angebaut.
Dieser erweitert den Wohnraum und ermöglicht einen direkten Zugang zum Eigengarten bzw. erweitert die Kinderzimmer im DG um eine große Dachterrasse.
Ein absolutes Low-Cost-Projekt.
Leistungen: Planung, Ausschreibung, Örtliche Bauaufsicht
Fertigstellung: 2009
Totalsanierung eines ca. 10 Jahre alten Mehrfamilienhauses, das aufgrund zahlreicher Planungs- und Ausführungsfehler massive Bauschäden aufwies.
Die Grundrisse der Wohnungen wurden adaptiert, sämtliche Außenbauteile wie Fassaden, Fenster, Dächer und Terrassen, sowie die gesamte Haustechnik wurden auf den aktuellen Stand der Technik gebracht. Ebenso wurden die Außenanlagen neugestaltet.
Leistungen: Planung, Ausschreibung, Örtliche Bauaufsicht
Fertigstellung: 2013
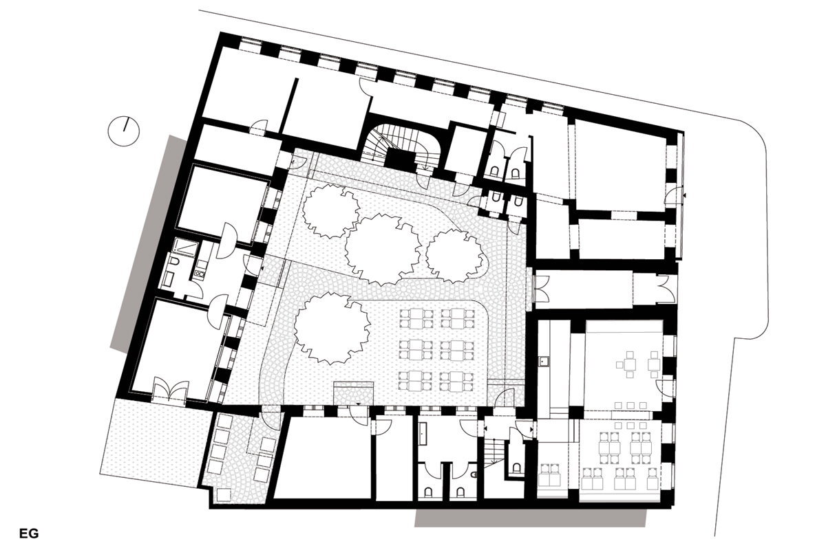
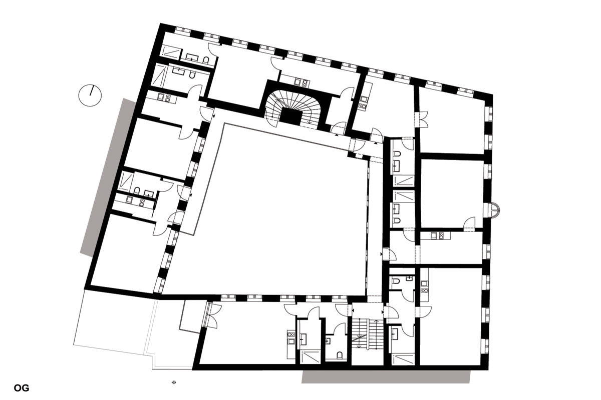
In den Bestandsgeschoßen eines Wiener Zinshauses wurden die Wohnungen, inkl. Adaptierung der Grundrisse, generalsaniert.
Einige Wohnungen wurden um einen Freiraum in Form eines Balkons erweitert.
Im Dachgeschoß wurde eine Wohnung inkl. Dachterrasse geschaffen.
Leistungen: Planung, künstlerische Oberleitung;
Fertigstellung: 2016
In exklusiver Hanglage wurde ein großzügig angelegtes Einfamilienhaus inkl. großzügigem Spa-Bereich und Indoor-Pool errichtet.
Großer Wert wurde auf eine durchgehende hochwertige Gestaltung des Innenbereiches gelegt.
Dieses Projekt wurde für das Büro Architekt DI Lutter ZT-GmbH als Projektleiter abgewickelt.
Leistungen: Planung, künstlerische Oberleitung.
Fertigstellung: 2008

begaplus KG I beutl.gaisbauer architektur wurde von DI Monika Gaisbauer und DI Thomas Beutl 2004 in Wien gegründet.
Wir entwerfen, planen und realisieren Wohnhäuser, Gewerbeobjekte, sowie Sanierungen und Umbauten.
Hierbei bilden die profunde Auseinandersetzung mit der Aufgabenstellung und die Besonderheiten des jeweiligen Ortes die Grundlage für die individuelle Gestaltung der Bauten.
Im Mittelpunkt unserer Planung stehen jedoch die Menschen, die das Gebäude nutzen und bewohnen.
Durch intensiven Dialog mit den Bauherren sehen wir es in unserer Verantwortung, gestalterisch anspruchsvolle Bauten zu entwickeln, die funktional sinnvoll sind und die wirtschaftlichen Gegebenheiten berücksichtigen.
Der Schwerpunkt unserer Planungsaufgaben liegt in den Bereichen:
Wesentlich für uns ist ein verantwortungsvoller Umgang mit den natürlichen Ressourcen bei Beachtung der mittelbaren und unmittelbaren ökonomischen Auswirkungen für den Bauherren.
Eine enge fachliche Zusammenarbeit mit allen an der Planung und Ausführung beteiligten Konsulenten und Fachfirmen ist für uns hierbei eine wichtige Voraussetzung.
Wir haben langjährige Berufserfahrung und bieten architektonische Betreuung für alle Leistungsphasen, die Entwicklung von Konzepten und Entwürfen, Ausführungsplanung sowie die Überwachung und Koordination von Bauprozessen, an.
begaplus KG I beutl.gaisbauer architektur
DI Monika Gaisbauert: 0680-1117997m: gaisbauer@begaplus.at
DI Thomas Beutlt: 0699-14861087m: beutl@begaplus.at
2640 Enzenreith, Harthofgasse 53